Деревянный дом «Ясногорье» - 211.8 м2

Деревянный дом «Ясногорье» - 211.8 кв.м. вид 1
Деревянный дом «Ясногорье» - 211.8 кв.м. вид 2
Деревянный дом «Ясногорье» - 211.8 кв.м. вид 3
Деревянный дом «Ясногорье» - 211.8 кв.м. вид 4

Выберите комплектацию

Материал стен:

Диаметр бревна:

Диаметр бревна:

Размер бруса:

Размер бруса:

Кровля:

Фундамент:

Стоимость

запросить смету
  • Собственное производство

  • Работаем без предоплаты

  • Только русские бригады

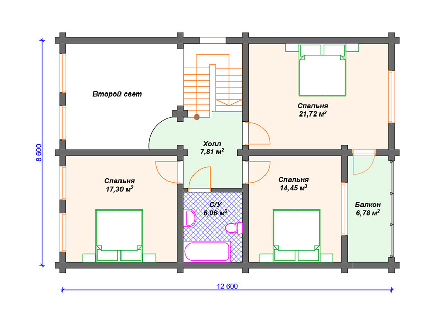
Планы этажей

План 1 этажа
План мансарды

Характеристики

  • Общая площадь 211.8 м2

  • Размеры дома 11.6 x 12.6

  • Сроки строительства 45 дней

  • Количество этажей 2 этажа

  • Высота потолков 1й эт. 2.7 м

  • Высота потолков 2й эт. от 0.8 м

  • Спален 3 шт

  • Санузлов 2 шт

  • Балкон есть

  • Веранда есть

  • Терраса есть

  • Крыльцо нет

Комплектация

  • Стеновой комплект:
    • Внешние стены, фронтоны и внутренние перегородки из бревна/бруса согласно проекта;
    • Бревна между собой утепляются джутовым волокном и соединяются деревянными нагелями;
    • Половые лаги и балки перекрытия из бруса 100 мм x 200 мм, с шагом 600 мм;
    • Заводское изготовление комплекта с зарезанием монтажных чашек по проекту;
    • Высота первого этажа 2,7 метра, мансардного этажа от 0,8 метра.
    • Материал - северный лес из Архангельской и Вологодской области.
  • Ленточный фундамент / Свайно-винтовой:
    • Земляные работы: рытье траншеи, бурение скважин, устройство песчаной подушки 150 мм;
    • Установка свай диаметром 200 мм, высота 1600 мм;
    • Монтаж опалубки и вязка арматурного каркаса;
    • Заливка фундамента 300 мм х 600 мм;
    • Бетон М300 (класс В-22,5);
    • Гидроизоляция фундамента.
  • Временная кровля / Чистовая кровля:
    • Стропильная конструкция из обрезной доски 200 мм x 50 мм с шагом 600 мм;
    • Скользящие опоры, шарнирные и «плавающие» соединения;
    • Монтаж обрешетки из обрезной доски 150 мм x 25 мм;
    • Временная кровля из рубероида с прижимными рейками;
  • Услуги:
    • Антисептическая обработка стенового комплекта и пиломатериалов;
    • Организация проживания строительной бригады;
    • Доставка в пределах Московской области;
    • Уборка строительного мусора;
    • Проектная документация;
    • Гарантия 10 лет.

Хотите внести изменения в проект дома
или необходимо индивидуальное решение?

Оставьте заявку и мы бесплатно подготовим вам расчет стоимости проекта.